• PORTFOLIO - SELECTED PROJECTS
  • Photography
    • SURREAL
  • About
  • Contact

Izabela E. Toma

Architect

  • PORTFOLIO - SELECTED PROJECTS
  • Photography
    • SURREAL
  • About
  • Contact

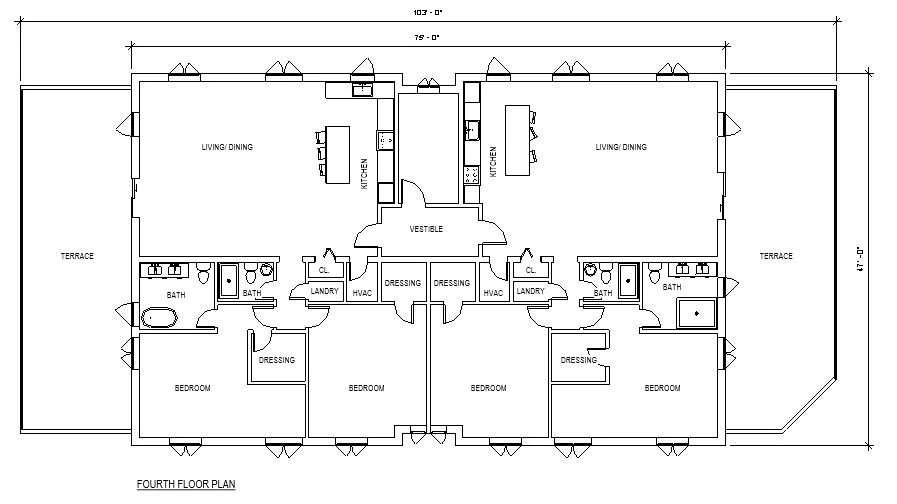
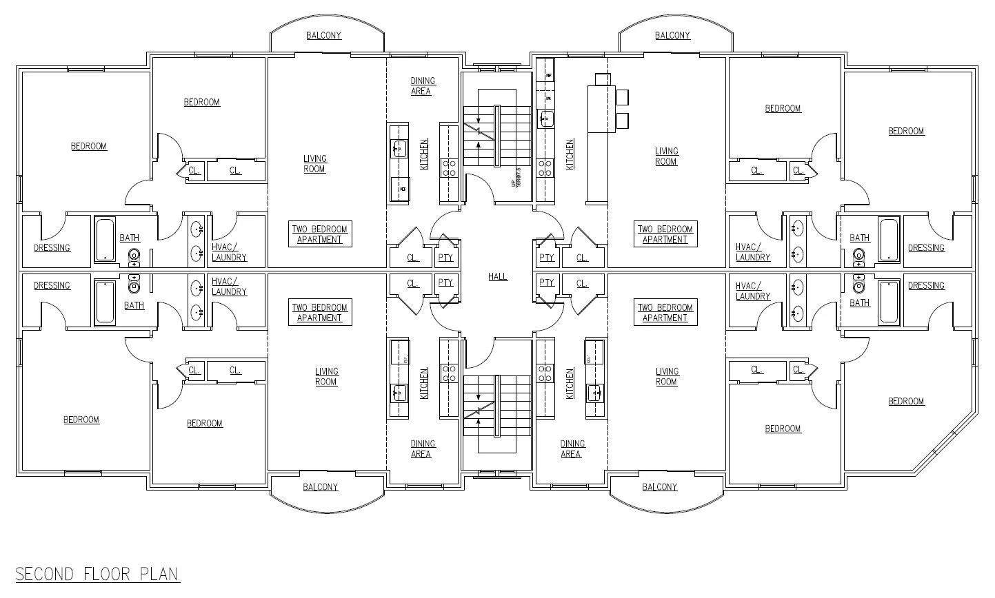
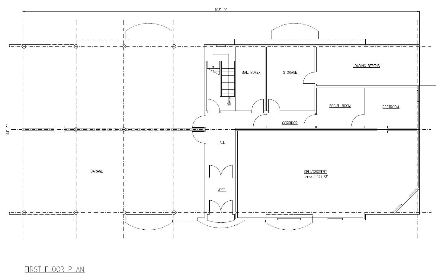
MULTISTORY - NJ

Under the supervision of licensed architect Bogdan, I contributed to the development of a mixed-use office building located in New Jersey. The project spans 15,094 square feet and consists of a newly constructed four-story building featuring 10 residential units, ground-floor commercial space, and an integrated garage.
My responsibilities included assisting in the preparation of detailed construction documents, working on architectural plans, sections, elevations, and technical details to ensure code compliance and design accuracy.
This project provided a valuable learning opportunity, as I used it to develop proficiency in Revit and Lumion for producing renderings.

view 15.jpg
10.jpg
8.jpg
6.jpg
view 5.jpg
Front elev.JPG
first floor.JPG
second floor.JPG
4th Fl.JPG

cell: 718- 314-1808