• PORTFOLIO - SELECTED PROJECTS
  • Photography
    • SURREAL
  • About
  • Contact

Izabela E. Toma

Architect

  • PORTFOLIO - SELECTED PROJECTS
  • Photography
    • SURREAL
  • About
  • Contact

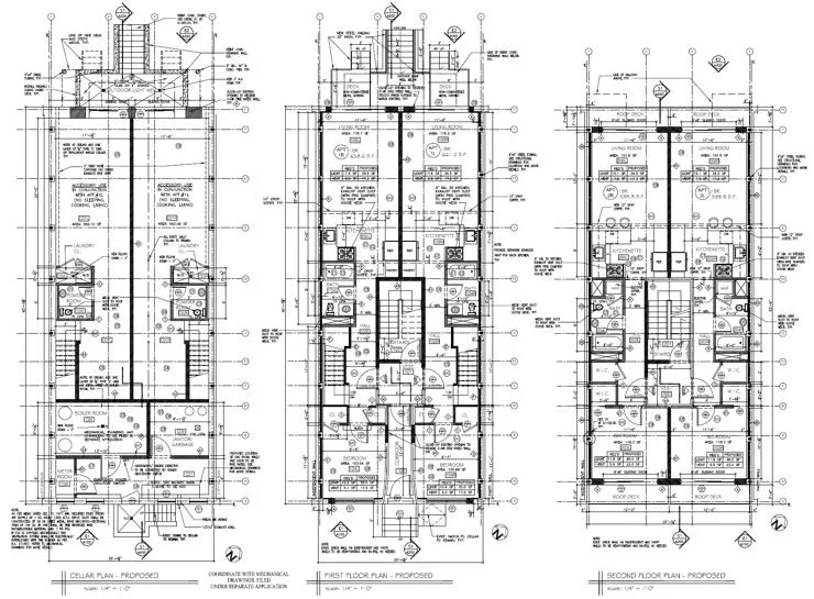
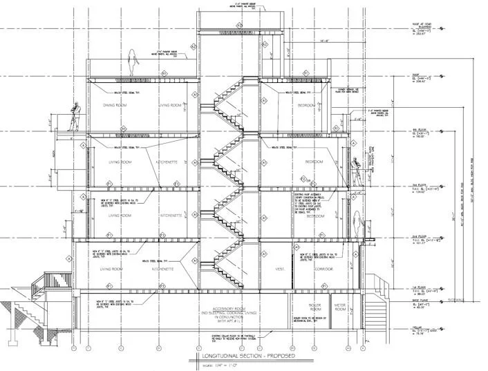
MULTIFAMILY BUILDING, QUEENS, NY

Constructed in 2018, this multifamily residential structure is strategically situated within a row of two-story, multifamily buildings spanning 6900 square feet. Ideally located in Queens, just a few blocks from a subway station, it boasts a convenient and efficient commute to Manhattan. The pre-existing wooden framework underwent a comprehensive transformation, incorporating a state-of-the-art fireproof structure to adhere to the latest code mandates. This upgrade facilitates a seamless transition from a two-story configuration to a refined and compliant four-story design.
On the first floor, one-bedroom apartments seamlessly connect to the rear landscape, while the upper floors house four two-bedroom apartments with balcony access. All apartments are equipped with modern kitchens and bathrooms, with the penthouse unit featuring luxurious amenities. The terrace provides a captivating view of the surrounding buildings.

Task:
Undertaken during my tenure at SEI, P.C., the responsibilities encompassed building design, preparation of construction, structural, and plumbing drawings, as well as conducting zoning analyses and creating 3D renderings.

4sty.jpg
20200918_124737.jpg
layouts.JPG
section.JPG
details.JPG
Greene_Lego.jpg
Front View
18-13 greene ave white model  lower front view.jpg
Rear View
Multifamily, Queens (11).jpg

cell: 718- 314-1808