• PORTFOLIO - SELECTED PROJECTS
  • Photography
    • SURREAL
  • About
  • Contact

Izabela E. Toma

Architect

  • PORTFOLIO - SELECTED PROJECTS
  • Photography
    • SURREAL
  • About
  • Contact

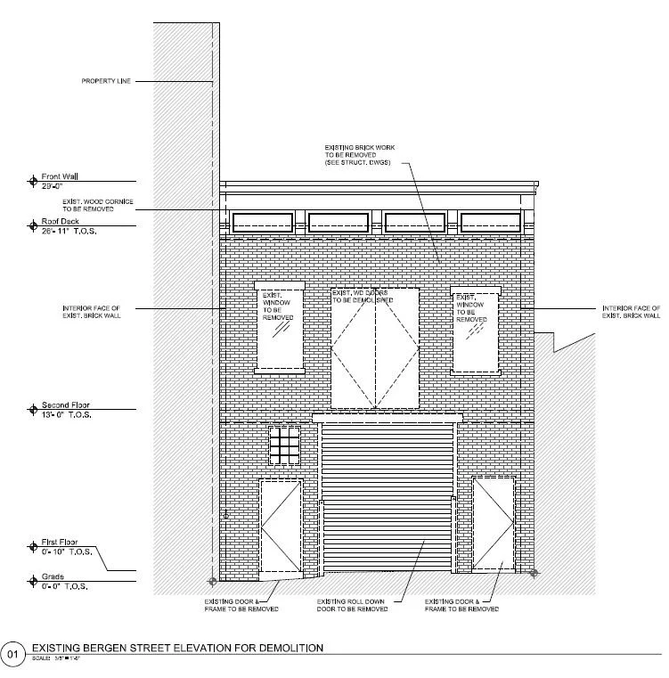
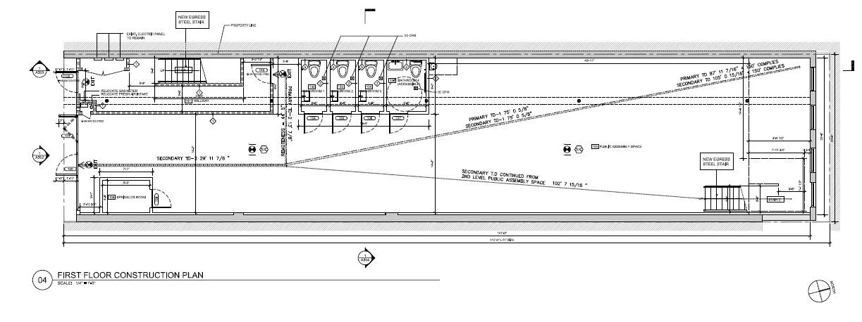
OFFICE BUILDING - BROOKLYN, NY

This project involved the design of a proposed office building occupying two stories located in Brooklyn, NY.

I participated in the design of the space and contributed to the preparation of comprehensive construction drawings, including floor plans, power and reflected ceiling (RCP) plans, sections, details, and schedules.

Task completed while employed in Formactiv Architecture Design.

proposed elev.JPG
exist elev.JPG
section.JPG
first fl.JPG
2nd fl.JPG

cell: 718- 314-1808